Realizace koupelny a WC Jana Masaryka

Investor: Tomáš Rosen

Autor projektu: arch. Pavel Přibyl

Photo: Miloslav Plášil

Realizace: srpen-září 2021

Materiál: Keope, Villeroy&Boch, Catalano, Dornbracht, Timera, Zehnder, Keuco, Berker a Hüppe

Finální provedení

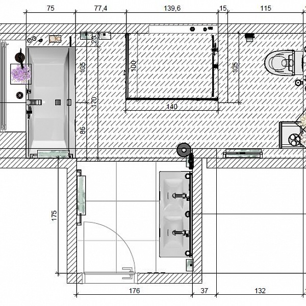
Vizualizace - návrh

Typ: